納まり 図 160563-Qlデッキ 納まり 図
納まり参考図・木造(pdf)(37 kb) 著作権について 本図面ダウンロードサービスのデータの著作権および所有権は、弊社が所有しております。> 納まり図 ステンドグラスの取付方法 ステンドグラスの寸法について 一般のガラスの仕上寸法は「枠内寸法」から数ミリ小さくした寸法ですが、弊社のステンドグラスは一般のガラスとは構造が違うため押縁の内寸 「見え掛かり寸法」 を基準に、各辺7〜9ミリ大きくした寸法となります。ビル用防火窓 bgシリーズ bge31e fix窓;
アルミサッシ 通販 Life Support Hamaya サッシ 販売 納まり図 ルーバー窓
Qlデッキ 納まり 図
Qlデッキ 納まり 図-納まり図 納まり図 断熱材 断熱材 防水層 スラブコンクリート 縦樋(vp・vu管、sus鋼管) シンダーコンクリート cl1gp csdn c cs c モルタル 防水層 防水層 alc板 alc板 chcssdr アスファルト・シート防水 ねじ込式 屋上用 chcsalc アスファルト・シート防水 ねじ込式 屋上用 外断熱工法 よこ引き alc工法 よCADデータ リベットルーフ防水システムの基本的な納まり図を掲載しています。 CADデータとして複数種類を用意しています。 ご活用ください。 ダウンロードいただけるデータ カタログ名称 選択してください 総合カタログ リベットルーフカタログ



天井アルミ点検口枠のpとnの違いは何ですか フクビ化学工業株式会社
クロゼット開き戸:三方枠(固定枠) 四方框デザイン(~年12月) 納まり図/姿図 品番: V (Z)HSZN3C ファイル名: OZ 詳細 ブックマークに入れる ダウンロードマドリモシャッター|納まり図|WEBカタログ|YKK AP株式会社 トップページ カタログ情報 WEBカタログTOP かんたんマドリモ シャッター・雨戸 業務用カタログ 追補版 マドリモシャッター 納まり図形式 シリーズ名 21〜22年版対応 pdf dxf ファイル名 nl300 fix枠 ・鉄筋コンクリート(rc)造
079 納まり図 cad pdf 079 縦断面詳細図 cad pdf 079 平面詳細図 cad pdf 開口枠 044 納まり図 cad pdf 044 詳細図 cad pdf 窓FIX 054 納まり図 cad pdf 054 詳細図 cad pdf 055 納まり図 cad pdf 055 詳細図 cad pdf 056 納まり図 cad pdf 056 詳細図 cad pdf 057 納まり図 cad pdf各商品の断面図や納まり図のデータをダウンロードできます。 防耐火認定図書 材料認定や防耐火構造認定の認定書をダウンロードできます。 アイジーサイディング・ アイジールーフ 施工説明書基本納まり図 基本納まり図木造下地 新築 縦張り ガルスパン neoj フッ素 縦継ぎ 軒笠木 下がり壁 土台 下屋見切り (注)土台部・下屋見切り部で縦用スターターを使用する場合、 土台部・下屋見切り部に積雪の影響(雪の負荷)のある地域では、 アルミ縦用スターター15の使用をお勧めし
納まり図、実寸平面図、姿図の各種データ(Jww・dxf・pdf)がダウンロードできます。 「データダウンロードにあたっての注意事項」にご同意いただいた上で、ご利用ください。 更新情報 納まり図・実寸平面図・姿図が新データになりました。 データダウンロードにあたっての24 各部詳細図 241 外壁・2重天井の納まり(立面混構造:メンブレン型+鉄骨造) 242 外壁の納まり(平面混構造:燃え止まり型) 243 外壁・基礎・2重天井の納まり(メンブレン型) 244 外壁・屋根・パラペットの納まり(メンブレン型)一般納まり(抱き納まり) pdf 断面情報 rcタイル貼り(掃き出し窓) fns70 引違い窓 fd70n 開きドア fns100 引違い窓 全開口サッシ feヘーベシーベ 引違い戸 二重サッシ 引違い窓 rc打ち放し(腰窓) fns70 引違い窓 ae70n 片引き窓 fns100 引違い窓 二重サッシ 引違い窓 rcタイル貼り



ステアルーバー 標準納まり図 日本メタル製造株式会社



ガレージ専用シャッター エスプリ 納まり図面です
標準割付図・納まり図 壁先行工法標準割付図 Veru jwwファイル(410KB) dxfファイル(1,286KB) 壁先行工法床納まり図(K根太)1 Veru jwwファイル(157KB) dxfファイル(471KB) 壁先行工法床納まり図(K根太)2 Veru jwwファイル(108KB) dxfファイル(321KB) 壁先行工法床納まり図(在来)1 Verダウンロード マイバインダーに追加ダウンロード 納まり図 2枚連動 既設ドア:半外付け納まり(プロント) / 外額縁:大 / 内額縁:アルミ額縁 大 + ラフォレスタ 98 マイバインダーに追加 ダウン納まり参考図 納まり参考図 一般抱き納まり 枠見込み(mm)窓種 70 rcタイル貼り fnsⅡ70 引違い窓 p751 fns70eat 引違い窓 p751 fd70n 開きドア p752 rc打ち放し fnsⅡ70 引違い窓 p752 ae70n 片引き窓 p753 pc打ち込み fns70p 引違い窓 p753 100 rcタイル貼り fns100 引違い窓(掃き出し窓) p754 全開口サッシ p



カムイマニュアル7 見積書 納まり図 プランボードの出力 Youtube



クッションレーンの標準図 Ce 34v Ce 34m Afn 55 Cad図面データ検索 ナカ工業株式会社
建築の納まり図 さて、納まり図には下記の種類があります。 ・詳細図 ・雑詳細図(部分詳細図) 構造図では、鉄骨詳細図や配筋詳細図があります。意匠図では、平面詳細図や矩計図が該当します。これらは、ある面や通りの全体を、詳細に描いた図面が多いです。木造先付け 納まり図 cad pdf 手動 木造先付け 詳細図 cad pdf 電動 木造先付け 詳細図 cad pdf 木造外壁付け 納まり図 cad pdf 手動 木造外壁付け 詳細図 cad pdf 電動 木造外壁付け 詳細図 cad pdf 建築・設計関係のお客様商品一覧;TypeF coffee納まり図 typeF coffee 納まり図 CADデータをダウンロードいただけます。 必要なデータ形式をクリックしてください。 ※以下の納まり図は標準設計例になります。 個々の納まり設計のための参考としてください。 ※商品改良のため、仕様・外観



天井 軒天納まり図 標準納まり図 納まり図集 難波金属株式会社



最新版 木造住宅納まり詳細図集コンプリート版 Cadデータ付き ディテールシリーズ3 Amazon Com Books
Archispec TOI:納まり図面軒先設計サポートツール 軒先条件を絞り込み、条件に合う納まり図(CADデータ/DXF・DWG・PDF形式)をダウンロードしていただけます。 軒先設計のサポートツールとしてご活用ください。納まり参考図 納まり参考図 fix枠;納まり断面図は法改正、製商品改良などにより予告無く変更する場合があります。 dxfデータが必要な方は下記お問合せ先まで cadデータ・dxfに関するお問い合わせ先 お電話でのお問い合わせ 開発部 tel: fax: メールでのお問い合わせ (お問い合わせ目的を「製品に関



納まり図集



天井アルミ点検口枠のpとnの違いは何ですか フクビ化学工業株式会社
EXS100 納まり図 水はね防止型ルーフドレン 100mm/hに相当する「猛烈な雨」の状況下でも、ほとんど水はねが見られないルーフドレンです。 水はね防止型ルーフドレンは、水はねや滞留水が発生しにくいため、バルコニーやベランダからの浸水防止に効果的です。マンション等のベランダに適し納まり図例 バルコニー全体 納まり標準図(サッシ後付け) JWCAD PDF FRP仕様(2ply) ・ポリルーフMPS-4工法 ・ポリルーフMPS-4匠工法 ・ポリルーフMPS-4ECO工法 ・ポリ基礎梁主筋納まり図 甲府総合庁舎新営(建築)工事 11 b1F~rf柱,梁平面配筋図 学校法人成城学校新校舎建設工事 11 柱,梁平面配筋図 墨田区緑二丁目計画 11 基礎階平面配筋図 鹿島共同発電所5号機建設工事 10 柱,梁平面配筋図 (仮称)大手町16計画新築工事 10 b6f~1f 柱,梁平面



納まり図集1 A1版 Fujigami フジガミ Booth



最新版 木造住宅納まり詳細図集コンプリート版 Cadデータ付き ディテールシリーズ3 Amazon Com Books
以下に順を追って補修,改修を含めた標準的な納まり図(例)を掲げる。なお,図はあくまで構成概 念図であり,塗膜厚みなど強調して表現しているため,必ずしも正確な尺度ではない点をお断りして おく。 公共建築工事標準仕様x1 鳥瞰図納まり図 の部分一致の例文一覧と使い方 直感的にかつ視覚的に 納まり図 などを簡単に効率良く作 図 できるようにする。 例文帳に追加 To intuitively, visually, easily and efficiently prepare a detailing drawing for showing the connection and fitting state of members or the like 特許庁納まり図例 1.立上り納まり図 ①天端巻き上げ、金属笠木 jwcad pdf ②天端巻き上げ、笠木なし jwcad pdf ③ダブルパラペット jwcad pdf ④目地シール納め jwcad pdf ⑤入り巾木シール納め jwcad pdf ⑥出巾木シール納め jwcad pdf ⑦基礎架台廻り jwcad pdf 2.役物廻り納まり図



シートシャッター大間迅m1タイプ納まり図面



016 アルミサッシ 納まり 施工図屋さん
標準納まり図 sznc 標準納まり図 szクリップ補強工法 標準納まり図 フェノバsz耐震断熱天井 標準納まり図 イアルszシーリング 標準納まり図 フェノバイアルハイブリッド天井 標準納まり図 アルミメッシュsz 標準納まり図 szかるライト 標準納まり図 szプール天井tmx 標準(図はNS型) 通気土台水切 芯材を取り除く (10㎜程度) 専用釘 以下の間隔で、鉄骨下地の場合は専用ビス(P36)を用いて610㎜以下の間隔で胴縁に留め付けます。 2-2 上下接合部 2 各部の基本納まり図 1)基本納まりTypeM_FLAT 納まり図 CADデータをダウンロードいただけます。 必要なデータ形式をクリックしてください。 ※以下の納まり図は標準設計例になります。 個々の納まり設計のための参考としてください。 ※商品改良のため、仕様・外観は予告なしに変更することがありますのでご了承ください。 目地材を充てんするようにしてください。 例)コーキング剤等



アルミサッシ 通販 Life Support Hamaya サッシ 販売 納まり図 玄関ドア プロント 親子



鉄筋納まり図 Jww Life Of Tmk Service
納まり図 主な工法のCAD図面を掲載しています。 作成は、JwCAD for Windowsにて行い、dxf/dwg形式(AutoCADファイル形式)に変換しています。 各図面をダウンロードして、ご使用くだ納まり図 機械的固定工法(210仕様) 国土交通省 公共建築工事標準仕様書 SM2 日本建築学会 建築工事標準仕様書 JASS 8 防水工事 SPM 平場 平場 41 Jww dxf dwg PDF 平場 42ビル用防火窓 bgシリーズ bge31e fix窓;



注文住宅納まり図の紹介 埼玉で自然素材の注文住宅なら 技拓工房



アルミサッシ 通販 Life Support Hamaya サッシ 販売 納まり図 勝手口 内付
施工図例 3 ボルト固定式ルーバー スカイフィット スタンダードタイプ 参考納まり図 格子タイプ ボルト固定式ルーバー スカイフィット スタンダードタイプ 参考納まり図 ガラリタイプ ボルト固定式ルーバー スカイフィット スタンダードタイプ 参考納まり図 フラットタイプ ボルト固定式ルーバー スカイフィット スタンダードタイプ 参考納まり図 外部階段納まり図 一括PDF (約28MB) 図番 建具仕様 ダウンロード 001 湿式工法(RC)片開戸 001dwg 002 湿式工法(RC)両開戸玄関・窓飾り/ドア納まり図 スニッカルペール標準寸法 ドア納まり図 横断面図 縦断面図 横断面図 縦断面図 ドア寸法 915 枠外寸法 990 ※スリムドアの場合 ドア寸法 815 枠外寸法 0 ※ハイドアの場合 ドア寸法 2130 枠外寸法 2180 ※スリムドアの場合 ドア寸法 815±2 シンプソン外部ドア詳細



図面データダウンロード 施工図例 納まり図 カーテン ブライドボックス Riken



手摺の書き方 施工図ドットコム
・納まり参考図は一例です。現場に合わせて検討してください。 ・漏水しない納まりが必要です。 ・部材と同等品(現場加工)も使用可能です。 納まり参考図 10-1 よこ張りの施工例 10 笠木、水切部納まり(スターターを上留めする場合)



標準納まり フレクサラム アルミ 外装 ルーバー



Lixil ビジネス情報 データサービス Cadデータ



現場の納まり図は大事 滋賀の不動産 新築 注文住宅ならエールコーポレーション



バイザーレール ひさし納まり参考例 2 イーブスシリーズの図面データ 田中金属株式会社



3



ガラスドアの 開口寸法の計測 から 納まり図 へ



ビル用ウインドウ ドア Eximaシリーズ Exima31 納まり参考図 鉄骨納まりのcadデータ一覧 Ykk Ap株式会社



アルミサッシ 通販 Life Support Hamaya サッシ 販売 納まり図 引違い窓 内付



壁を考える おさまり のいい図面 鍵はbim 二次元cadの相互理解 第2回 壁 お客様マイページ 大塚商会



現場の納まり図は大事 滋賀の不動産 新築 注文住宅ならエールコーポレーション



1



ラムダ設計施工説明書ver 1



納まり図と写真 4 現代の町屋を提案する 有 インターハウス捷 伊藤捷治 住まいに係る話や その時々の思いを綴っていきます



1



納まり の事前検討 日本防水工業株式会社



ストーンウェイブ 型 納まり図 自社オリジナル建材製品 取扱商品 株式会社 佐渡島



ルーバーレール 納まり図の図面データ 田中金属株式会社



注文住宅納まり図の紹介 埼玉で自然素材の注文住宅なら 技拓工房



注文住宅納まり図の紹介 埼玉で自然素材の注文住宅なら 技拓工房



業務内容 施工図業務 大連星海美装図文設計有限公司



納まり図 ステンドグラスの取付方法 マリヨステンドグラス



防火商品 納まり参考図のcadデータ一覧 Ykk Ap株式会社



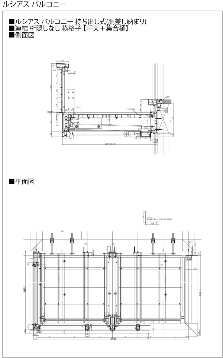
ウォールエクステリア バルコニー 階段 ルシアス バルコニーのcadデータ一覧 Ykk Ap株式会社



アルミサッシ 通販 Life Support Hamaya サッシ 販売 納まり図 ルーバー窓



天井アルミ点検口枠のpとnの違いは何ですか フクビ化学工業株式会社



納まり図と写真 2 現代の町屋を提案する 有 インターハウス捷 伊藤捷治 住まいに係る話や その時々の思いを綴っていきます



ガレージ専用シャッター エスプリ 納まり図面です



Lixil ビジネス情報 データサービス Cadデータ



納まり図集 のアイデア 9 件 詳細図面 施工図 建築



ボックスレール カーテンボックス 埋込タイプ 参考図の図面データ 田中金属株式会社



納まり図と写真ー17 現代の町屋を提案する 有 インターハウス捷 伊藤捷治 住まいに係る話や その時々の思いを綴っていきます



日本ベルックス Cadダウンロード



17summer新作フルハイトドアをご紹介 納まり図とプランボードも便利になります



標準納まり フレクサラム アルミ 外装 ルーバー



02 号 施工図用cadシステムおよびcad支援データが記憶された記憶媒体 Astamuse



ウォールオーニング納まり図 Manualzz



ガレージ専用シャッター エスプリ 納まり図面です



建築の納まり図とその解説 建築の様々な納まりを図と写真で紹介します Part 18



和室 納まり図 納まり図集



団地リノベレポート 大工さんの納まり図 株式会社デザインライフ設計室



納まり図集 のアイデア 9 件 詳細図面 施工図 建築



注文住宅納まり図の紹介 埼玉で自然素材の注文住宅なら 技拓工房



片引き戸 上吊タイプ 納まり図 建具 室内 ドアのカントリーハウス



納まり図 前田工繊の環境にやさしいエクステリア整備資材 Kankyo Wood



Lixil ビジネス情報 データサービス Cadデータ



片開き戸納まり図 建具 室内 ドアのカントリーハウス



納まり図集 のアイデア 9 件 詳細図面 施工図 建築



最新版 納まり詳細図集 和風住宅 茶室編 ディテールシリーズ2 西大路雅司 佐藤洋司 照井春郎 才門俊文 本 通販 Amazon



物入れの納まり詳細図



現場の納まり図は大事 滋賀の不動産 新築 注文住宅ならエールコーポレーション



ソフトハンドの標準図 P 30v P 30m Cad図面データ検索 ナカ工業株式会社



Cadデータダウンロード アトラスark株式会社 エアライン Airline Al 105 各種納まりズ



部分詳細図 兼 納まり図 造作キッチン 造作洗面台 Ys Louis Design ワイズアンドルイスデザイン



サドシマzルーフ 型 納まり図 自社オリジナル建材製品 取扱商品 株式会社 佐渡島



Lixil ビジネス情報 データサービス Cadデータ



納まり図集2 A1版 Fujigami フジガミ Booth



Lixil ビジネス情報 データサービス Cadデータ



Toex 納まり図 囲い商品 テクニカルブック エクステリア 組立 取付 施工 参考 取扱 商品保証 Biz Lix ビズリク



押入れ 納まり 納まり図集



手すり照明 天然木 の標準図 Nws C O35 Cad図面データ検索 ナカ工業株式会社



廻り縁アール加工納まり図 標準納まり図 納まり図集 難波金属株式会社



ウォールエクステリア バルコニー 階段 ルシアス バルコニーのcadデータ一覧 Ykk Ap株式会社



ルーバーレール ルーバー縦貼り詳細参考図 胴縁タテ納まり の図面データ 田中金属株式会社



ステアルーバー 標準納まり図 日本メタル製造株式会社



オーバードア 納まり参考図 アルラックス株式会社



納まり図を描く時は Ono設計室ブログ



一般的な納まり ディテール詳細 建築設計研究所



物入れの納まり詳細図



Lixil ビジネス情報 データサービス Cadデータ



02 号 施工図用cadシステムおよびcad支援データが記憶された記憶媒体 Astamuse



ガレージ専用シャッター エスプリ 納まり図面です



常滑n邸 窓納まり図 建築事務所は日々考える



納まり図と写真ー18 現代の町屋を提案する 有 インターハウス捷 伊藤捷治 住まいに係る話や その時々の思いを綴っていきます



1



ウォールエクステリア バルコニー 階段 ルシアス バルコニーのcadデータ一覧 Ykk Ap株式会社



雨漏りの夢 納まり図集



納まり システムの標準的な規格寸法 Ip Einrichten ドイツ システム家具 正規取扱店 エスプリブラン



ガレージ専用シャッター エスプリ 納まり図面です



納まり図 施工図 と写真 6 現代の町屋を提案する 有 インターハウス捷 伊藤捷治 住まいに係る話や その時々の思いを綴っていきます



ロックパネル 標準納まり図 日本メタル製造株式会社



X Knowledge 改訂 木造住宅納まり詳細図集 コンプリート版



ガレージ専用シャッター エスプリ 納まり図面です



ビル用ウインドウ ドア 納まり参考図のcadデータ一覧 Ykk Ap株式会社



サドシマzルーフ 型 納まり図 自社オリジナル建材製品 取扱商品 株式会社 佐渡島



建築の納まり図とその解説 建築の様々な納まりを図と写真で紹介します



アルミサッシ 通販 Life Support Hamaya サッシ 販売 納まり図 アパートドア レガーロ

コメント
コメントを投稿